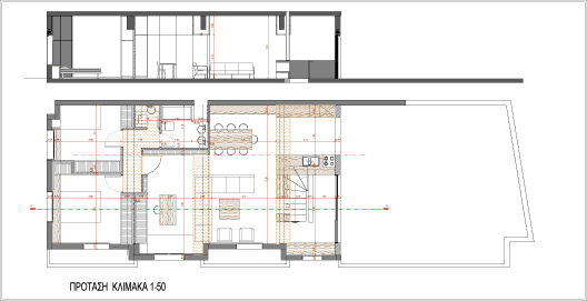
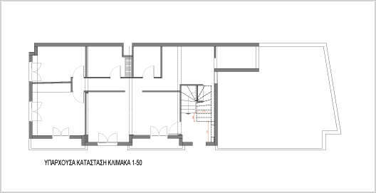
ΜΕΛΕΤΗ ΑΝΑΚΑΙΝΙΣΗΣ ΚΑΤΟΙΚΙΑΣ ΣΤΗΝ ΝΙΚΑΙΑ

This is a unique website which will require a more modern browser to work!

Please upgrade today!